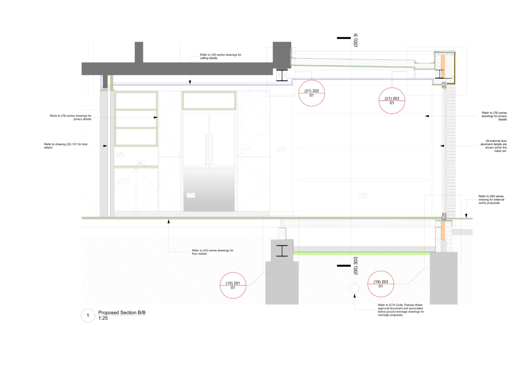
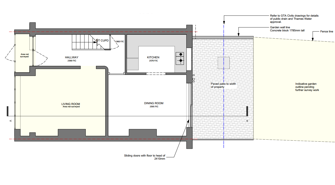
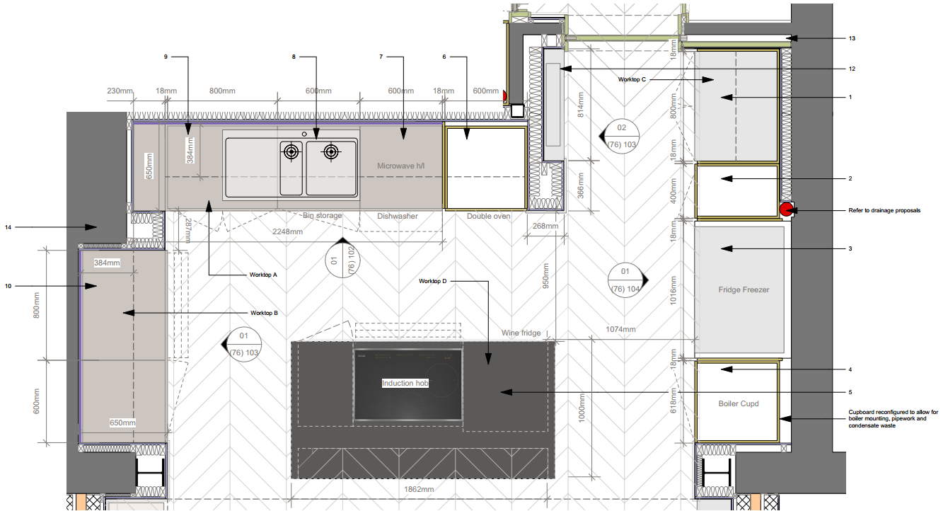
A terraced house located within Forest Hill had become too small for a growing young family. The brief was to provide an extension to the rear of the property and reconfiguration of the internal rooms that were constraining the existing space. The proposal relocated and enlarged the existing kitchen, enabled greater connectivity to the garden and allowed for a small utility/wc.



