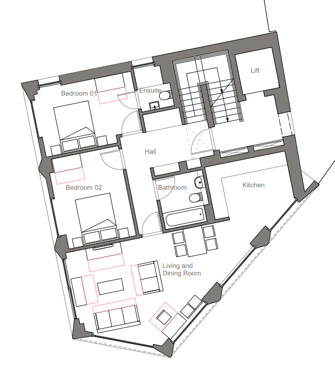
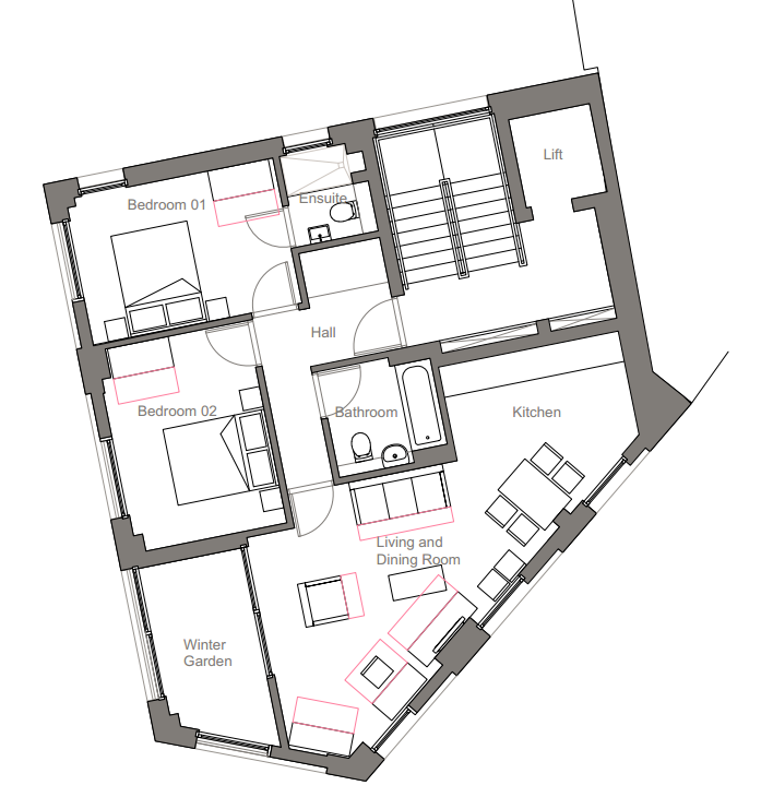
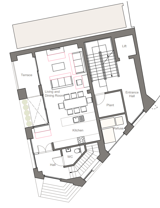
Renew was appointed to assist Buckmaster Batcup Architects in delivering an 8 apartment scheme ( 5x2 bedroom and 3x3 bedroom) located on East Road in the London Borough of Hackney. The corner site presented numerous constraints which included Network Rails Northen City line tunnels running beneath the property. Working in conjunction with the client and design team Renew has been integral in developing a viable proposal to enable progression of the development to tender.


